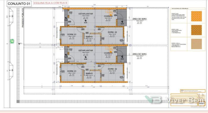
Casa Geminada de 2 dormitórios no bairro Santa Rita em Estrela
Cód. v3900
* Valores sujeitos a alteração, sem aviso prévio. A visualização de mobília nas imagens não significa que o mesmo será comercializado mobiliado.
Dados do Imóvel
Código/Ref.
v3900
Finalidade
Compra/Venda
Tipo
Casa Geminada
Cidade
Estrela
Bairro
Santa Rita
Dormitórios
2
Banheiros
1
Vagas/Garagem
1
Área Construída (m²)
43,00m²
Área Privativa (m²)
43,00m²
Valor
R$ 249.000,00
Compra/Venda
R$ 249.000,00
Características
2 dormitórios, sala de estar, cozinha, lavanderia, 1 banheiros social,1 vaga. pátio com muro nos fundos, construção de qualidade com tijolo maciço 4,5 metros de pátio nos fundos
Observações
previsão de entrega : novembro/dezembro 2025
